PR TIMES プレスリリース
本ページではPR TIMESのプレスリリースをそのまま掲載しています
【シアターマーキュリー新宿】開館のお知らせ 株式会社マーキュリー
株式会社マーキュリー
〜新宿に新劇場オープン!シアターマーキュリー新宿が2023年3月に開館〜
人材を活用したセールスプロモーション、人材派遣事業を行なう株式会社マーキュリー (所在地:東京都新宿区西新宿1-26-2新宿野村ビル23階、代表取締役:林 正和)は、東京・新宿(東京都新宿区)の新宿マルイ本館(運営:株式会社丸井グループ)内に、新たなエンターテインメントの発信地として、『シアターマーキュリー新宿』を2023年3月にオープンいたします。(公式サイト https://theatre-mercury.com)

「シアターマーキュリー新宿」イメージパース

舞台と客席に一体感を感じられるような大半を黒で統一したブラックボックス空間に、高精細な大型LEDビジョンを設置。演劇・演芸・ライブ・コンサートはもちろんのこと、企業向けの各種イベントなどにもご利用いただけます。
また、座席の取り外しが可能なためオールスタンディングでのご利用も可能です。
配信設備を備えているため、公演・イベントの様子をオンライン配信することができます。

コンセプトは「エンターテインメントの発信基地」
なぜ今、劇場なのか。
コロナ禍でオンラインが普及し、人と人とが直接的に触れ合う機会が減少する中、
私たちは、人のぬくもりが大切だと再認識しました。
劇場は多くの人が集まって、人が人を好きになり心が揺れ動く場所です。
これから重要になることが予想されるリアルなコミュニケーションの場。
そんな空間を私たちは新宿に作りました。
劇場は人を育て、企画を生んで、文化を創り出します。
つまり人と人との交わりの中で、人は育ち、企画は生まれ、文化ができるのです。
価値観が瞬時に変わり、細分化されていく現代。
大衆性こそ失われたかもしれませんが、代わりに多くの人が自分の可能性や夢を
持つことができる時代になりました。
『自分の可能性を試したい。』
シアターマーキュリー新宿は、そのような志ある者に寄り添う劇場でありたい。
ジャンルにとらわれないエンターテイメントの発信基地として、すべてのクリエイターや表現者に
開かれた劇場でありたい。
このありたい姿は、作り手だけではなく、出演者、観客、運営、応援する人、全ての人たちで
一緒に創り上げる劇場であるべきだと考えます。
皆様との出会いを楽しみにしています。


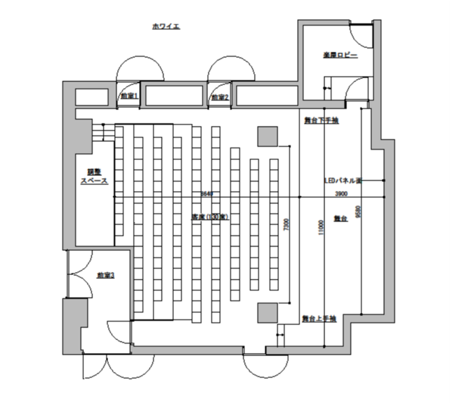
■劇場概要
基本営業日 月曜日〜日曜日(新宿マルイ本館に準ずる)
客席数 130席
劇場空間 約11.0m×約14.4m(最大寸法)
舞台空間 約7.2m×約3.9m(最大寸法)
楽屋 2室
搬入車両 2t車両まで
■アクセス
〈新宿三丁目駅〉
・東京メトロ丸ノ内線A4出口徒歩1分
・都営新宿線A1出口徒歩2分
・東京メトロ副都心線A1出口徒歩2分
〈新宿駅〉
・東京メトロ丸ノ内線A6出口徒歩3分
・JR山手線東口徒歩5分
■企業情報
株式会社マーキュリー
所 在 地 : 東京都新宿区西新宿1-26-2新宿野村ビル23階
電話番号 : 03-6388-0023
URL :https://mercury-group.co.jp/
設 立 : 2006年11月
資本金 : 5,000万円(資本準備金3,000万円)
従業員数 :5,986名(正社員率90%以上/2022年4月1日時点)
事業内容 : 人材を活用したセールスプロモーション、オペレーションアウトソーシング、コンサルティング、テクノロジーソリューション等
代 表 者 : 代表取締役 林 正和
■株式会社マーキュリー情報一覧
・サービス専用サイト(https://service.mercury-group.co.jp/)
・新卒採用サイト(https://recruit.mercury-group.co.jp/)
・キャリア採用サイト(https://career.mercury-group.co.jp/)
・プレスリリース一覧(https://mercury-group.co.jp/news)
企業プレスリリース詳細へ
PR TIMESトップへ
〜新宿に新劇場オープン!シアターマーキュリー新宿が2023年3月に開館〜
人材を活用したセールスプロモーション、人材派遣事業を行なう株式会社マーキュリー (所在地:東京都新宿区西新宿1-26-2新宿野村ビル23階、代表取締役:林 正和)は、東京・新宿(東京都新宿区)の新宿マルイ本館(運営:株式会社丸井グループ)内に、新たなエンターテインメントの発信地として、『シアターマーキュリー新宿』を2023年3月にオープンいたします。(公式サイト https://theatre-mercury.com)

「シアターマーキュリー新宿」イメージパース

舞台と客席に一体感を感じられるような大半を黒で統一したブラックボックス空間に、高精細な大型LEDビジョンを設置。演劇・演芸・ライブ・コンサートはもちろんのこと、企業向けの各種イベントなどにもご利用いただけます。
また、座席の取り外しが可能なためオールスタンディングでのご利用も可能です。
配信設備を備えているため、公演・イベントの様子をオンライン配信することができます。

コンセプトは「エンターテインメントの発信基地」
なぜ今、劇場なのか。
コロナ禍でオンラインが普及し、人と人とが直接的に触れ合う機会が減少する中、
私たちは、人のぬくもりが大切だと再認識しました。
劇場は多くの人が集まって、人が人を好きになり心が揺れ動く場所です。
これから重要になることが予想されるリアルなコミュニケーションの場。
そんな空間を私たちは新宿に作りました。
劇場は人を育て、企画を生んで、文化を創り出します。
つまり人と人との交わりの中で、人は育ち、企画は生まれ、文化ができるのです。
価値観が瞬時に変わり、細分化されていく現代。
大衆性こそ失われたかもしれませんが、代わりに多くの人が自分の可能性や夢を
持つことができる時代になりました。
『自分の可能性を試したい。』
シアターマーキュリー新宿は、そのような志ある者に寄り添う劇場でありたい。
ジャンルにとらわれないエンターテイメントの発信基地として、すべてのクリエイターや表現者に
開かれた劇場でありたい。
このありたい姿は、作り手だけではなく、出演者、観客、運営、応援する人、全ての人たちで
一緒に創り上げる劇場であるべきだと考えます。
皆様との出会いを楽しみにしています。


■劇場概要
基本営業日 月曜日〜日曜日(新宿マルイ本館に準ずる)
客席数 130席
劇場空間 約11.0m×約14.4m(最大寸法)
舞台空間 約7.2m×約3.9m(最大寸法)
楽屋 2室
搬入車両 2t車両まで
■アクセス
〈新宿三丁目駅〉
・東京メトロ丸ノ内線A4出口徒歩1分
・都営新宿線A1出口徒歩2分
・東京メトロ副都心線A1出口徒歩2分
〈新宿駅〉
・東京メトロ丸ノ内線A6出口徒歩3分
・JR山手線東口徒歩5分
■企業情報
株式会社マーキュリー
所 在 地 : 東京都新宿区西新宿1-26-2新宿野村ビル23階
電話番号 : 03-6388-0023
URL :https://mercury-group.co.jp/
設 立 : 2006年11月
資本金 : 5,000万円(資本準備金3,000万円)
従業員数 :5,986名(正社員率90%以上/2022年4月1日時点)
事業内容 : 人材を活用したセールスプロモーション、オペレーションアウトソーシング、コンサルティング、テクノロジーソリューション等
代 表 者 : 代表取締役 林 正和
■株式会社マーキュリー情報一覧
・サービス専用サイト(https://service.mercury-group.co.jp/)
・新卒採用サイト(https://recruit.mercury-group.co.jp/)
・キャリア採用サイト(https://career.mercury-group.co.jp/)
・プレスリリース一覧(https://mercury-group.co.jp/news)
企業プレスリリース詳細へ
PR TIMESトップへ
|
|
|
